アクトワンヤマイチ カタログ Vol.26

アクトワンヤマイチのカタログVol.26です。


>> P.207

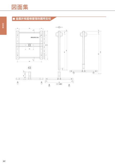
図面集図面集■金属折板屋根墜落防護用支柱207


<< | < | > | >>